Altenbekener Damm 53 D-30173 Hannover
T +49 (0) 511.37018790 F +49 (0) 511.37018791 M +49 (0) 176.70406936
mail@anne-stallkamp.de www.anne-stallkamp.de
A n n e S t a l l k a m p
Innenarchitektur

Balanceakte und flugträume
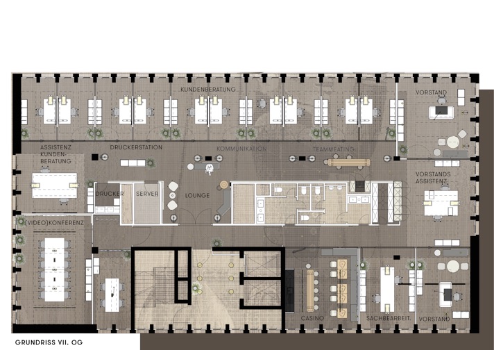
Haus am Aegi, VII. OG 550 qm Mieterausbau
als Corporate Architecture für die Bantleon AG
Der Anleihemanager Bantleon ist ein Spezialist für sicherheits- orientierte Kapitalanlagen. Sichere Anlagen und lukrative Gewinne sind ein Balanceakt, den der Berliner Illustrator Olaf Hajek für das Unternehmen in kongeniale, zeitgenössiche Illustrationen umgesetzt hat. Die Bürogestaltung setzt die Unternehmenswerte als Corporate Architecture um.
Den inneren, von der Architektur vorgegebenen, Kern umfängt eine multifunktionale Holzwand, die die Corporate Image Bilder in spektakulären Akustografien in den Raum transformiert. Sie birgt zusätzlich zu ihrer akustischen Wirksamkeit zahlreiche funktionale Elemente wie ein Factsheetregal, einen Mineralwasserspender, Schränke für Akten, Vollholzauszüge für Büromaterial, eine Licht- voute und die Vorstandsgarderoben in selbiger Raumzonierung.
Trotzdem eine Unterteilung in Einzelbüros für das Kerngeschäft, die vorwiegend am Telefon geführten Beratungsgespräche, unum- gänglich war, bewahrt die Raumgestaltung die Durch- und Aus- blicke der architektonischen Raumhülle, die mit Ihren schmalen vertikalen Fensteröffnungen jeden einzelnen Turm der Stadt rahmt.
Schränke, Boards und Einbauten sind Sonderanfertigungen die komplexen Anforderungen an die Raumakustik Rechnung tragen.
Der differenzierte Farb- und Materialkanon gibt sich sophisticated, zeitlos, nuanciert fein Funktionen und Kompetenzen und wird bestimmt von der Leidenschaft für authentische Materialität und Werthaltigkeit: Wollstoffe, Leder, Naturstein, Echtholz, Naturmessing: Einfach wertvoll...
zurück zu den Projekten